




FICHA TÉCNICA
Estudio Servente & Larrazabal Arqs
Proyecto y direccion: Arq. Santiago Servente Arq. Victoria Larrazabal
Colaboradores: Ing. Hugo Peralta calculo estructural
Año de proyecto : 2023
Ubicacion: Club de campo Vallescondido, San Martin de los Andes, Neuquén
En obra
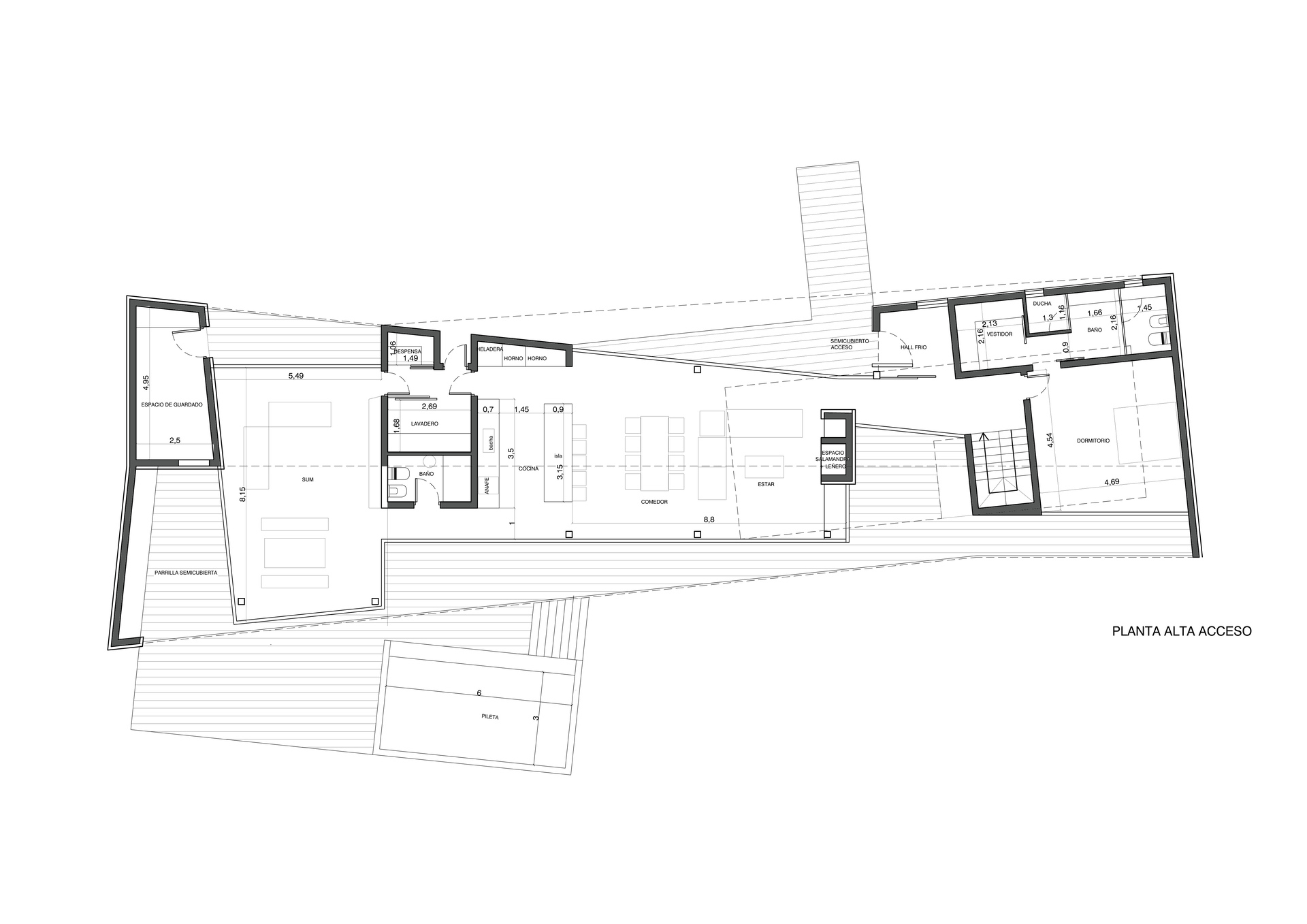
Ubicado en lote con una pendiente intensa, desde donde se aprecian las vistas hacia el lago Lacar, ubicado a la distancia, el proyecto busca crear una vivienda destinada al uso de vacaciones, donde los ambientes puedan disfrutarse en familia y compartirse. La planta alta se convierte en un gran mirador que es traspasado por el paisaje. Las sutiles diagonales crean un juego visual con el entorno de montañas y vegetación, dispuestas bajo un gran techo que cubre y protege del clima y del sol del oeste.

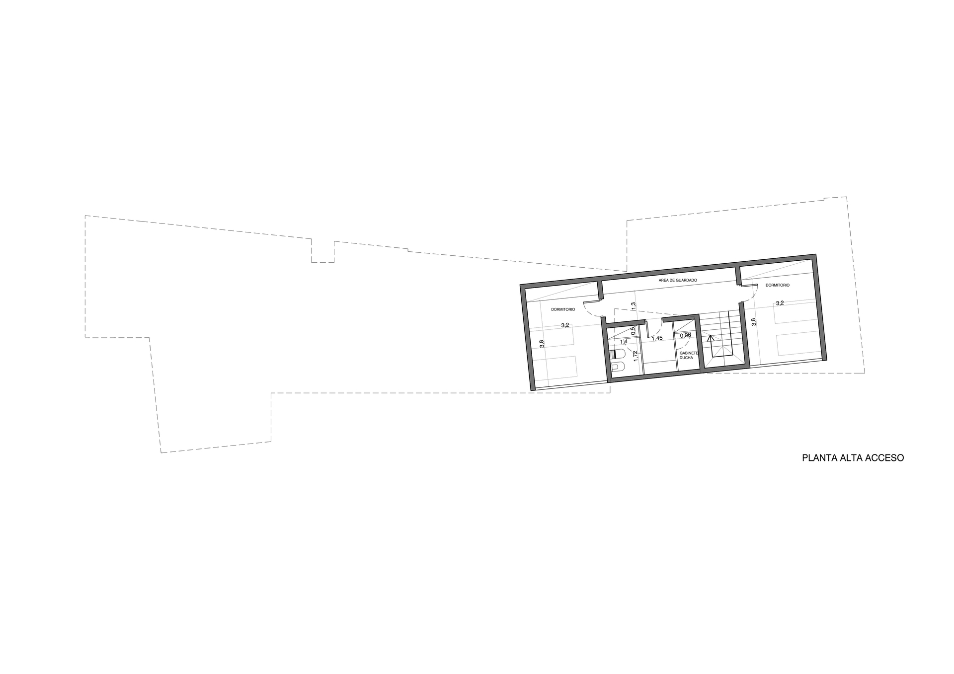
Adaptarse al terreno y buscar las mejores vistas sobre el denso bosque autóctono no era una tarea simple, y se trabajó para eso en dos niveles. Las habitaciones para los hijos se ubican en el nivel inferior, y un área de sala de máquinas y servicios también sirve para configurar este basamento sobre el que se posan los espacios principales en el nivel superior.
Para crear este mirador exterior hacia el que se expanden los espacios de uso común se dispuso un espejo de agua, para usar en los días más calurosos del verano patagónico, crean también un cierre y contención del terreno.
La casa trabaja con tonos oscuros, grises y negros, como buscando ocultarse en el bosque, una especie de roca o tronco quemado que quedó varado en el terreno.