




FICHA TÉCNICA
Estudio Servente & Larrazabal Arqs
Proyecto y direccion: Arq. Santiago Servente Arq. Victoria Larrazabal
Año de proyecto : 2023
Ubicacion: Barrio Altos del Sol, San Martin de los Andes, Neuquén
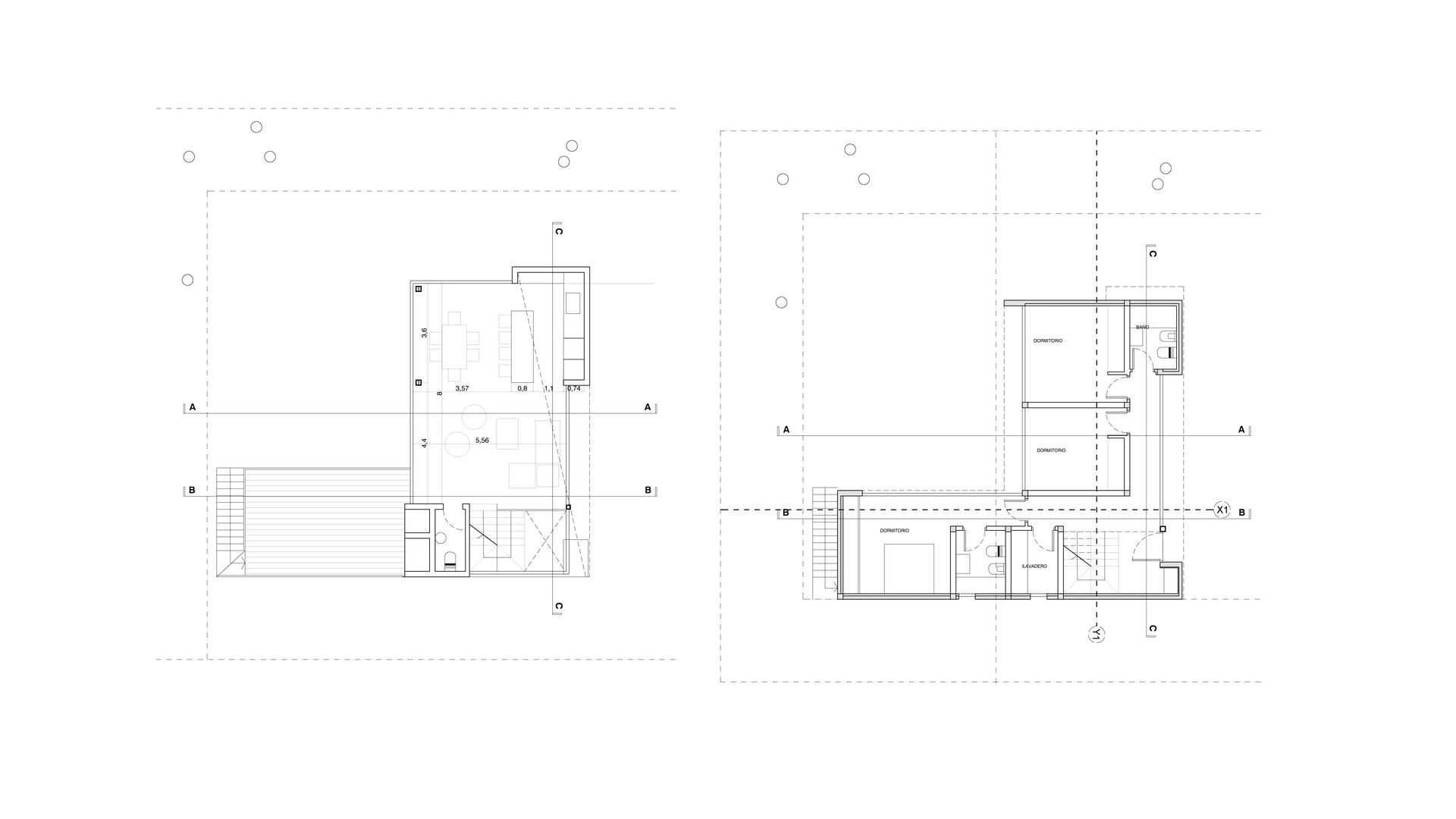
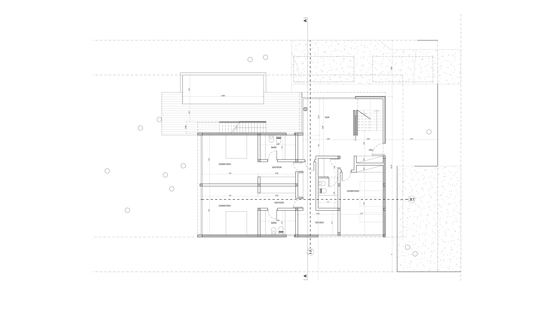
Superficie: 380 m2 + 155 m2
2 Viviendas Unifamiliares
El Barrio Altos de los De San Martin de los andes se encuentra inmerso en un bosque próximo al centro de San Martin de los Andes. El lote ubicamos dos viviendas que desde la planta alta a través de sus ventanales se fundirían en el bosque y contemplarían EL cordón chapelco. El proyecto plantea el dialogo entre las dos viviendas, su relación entre sí, privacidad, lugares comunes, entorno, relación entre volúmenes, asoleamiento y vistas.
Se utilizo, madera, chapa y Hormigón de tablas de un modo austero y rustico.

