



FICHA TÉCNICA
Estudio Servente & Larrazabal Arqs
Proyecto y direccion: Arq. Santiago Servente Arq. Victoria Larrazabal
Colaboradores: Ing. Hugo Peralta calculo estructural.
DESTINO VIVIENDA UNIFAMILIAR
Ubicacion: Península San Pedro, San Carlos de Bariloche, Rio Negro, Argentina.
Año de proyecto : 2017-19
Superficie de terreno : 5500 m²
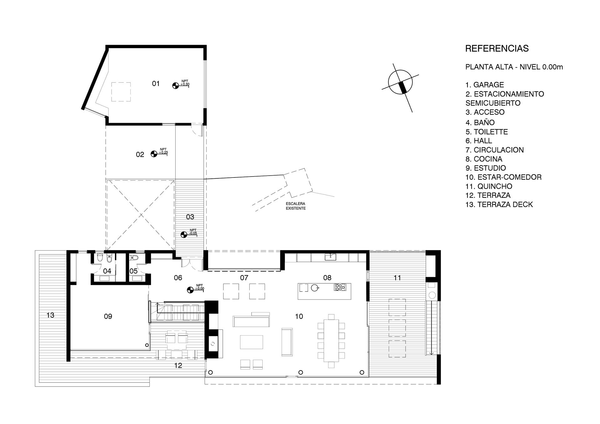
Superficie: 365 m² cubiertos
Destino: Vivienda unifamiliar
La casa se sitúa a orillas del Lago Nahuel Huapi, donde se observa una infinita y majestuosa vista hacia la cordillera de los Andes y su inmenso espejo de agua más representativo.
El acceso al lote es en desnivel, en el sector más alto se encuentra la calle, en el medio se sitúa el terreno sobre el cual deberíamos actuar, el mismo presentaba dos niveles o plataformas bien marcadas donde las visuales se exponen en su máxima versión. Estas plataformas son el resultado de la huella de la vieja construcción que el cliente opto por demoler, dejando un vacio a recomponer, y la configuración natural de la ladera que baja desde la calle hacia el lago. Este sector es donde ingresa el mayor asoleamiento y las mejores vistas al paisaje, que apuntan al norte.

Contemplar, atravesar, insinuar, descubrir, cobijar, descansar fueron los primeros verbos de las acciones que allí se desarrollarían que pudimos capturar.
Frente a esto optamos por generar un soporte de piedra en el nivel inferior del terreno y elevara la planta alta en la cual se dispusieron los usos sociales que estarían relacionados a las costumbres de sus usuarios y actuara como plataforma de observación y contemplación al lago y su infinita cordillera.
En la planta superior se encuentra el nivel de acceso por la cual llegamos a la vivienda, esto era parte del programa y por otra parte requerimientos como privacidad, resguardo, protección eran temas a abordar. Automáticamente pensamos en que el dispositivo mirador el cual estaría paralelo al lago y los niveles del terreno, aprovechando al máximo el asoleamiento, debería atravesarse en el sentido perpendicular, así dimos lugar a una piel negra perforada hacia el norte la cual envolvería el dispositivo, el puente que se extiende y vincula la vivienda con el semicubierto receptor y la cochera que contiene un área de trabajo que actúa como ancla a la plataforma más alta. La llegada a la vivienda se produce por medio de este brazo que se desprende sobre declive abrupto del terreno insinuando la proximidad a la plataforma mirador.

Se decidió en ciertos sectores claves de nivel superior dejar pasantes las vistas hacia el lago, en otros a través de unos elementos verticales de madera en continuidad con esta piel tener sectores semipermeables que de frente uno pudiese tamizar la vista y desde una visión más angular lograr privacidad hacia el interior de la vivienda. Las actividades que se desarrollan son de carácter familiar, actividades compartidas que se integran y los espacios que se forman buscan poner de manifiesto este concepto. Las acciones se influencian entre si y los limites se diluyen entre los mismo. Recibir, encontrarse, charlar, jugar, cocinar, trabajar, informar, leer, son actividades que se pueden llevar a cabo de forma paralela apropiándose de los espacios tanto interiores como exteriores que propone este gran mirador.




Nuestros objetivos de resguardo, permeabilidad, cobijo y este atravesar diferentes situaciones para llegar al objetivo de contemplar estaban garantizados. La piel se trabajo de manera continua y liviana un revestimiento exterior negro la materializa y en sus perforaciones se dejamos expuesto el reverso utilizando la madera emblemática de la zona la lenga, dispuesta en sentido vertical paralelo al lago perpendicular a este atravesar o transitar el espacio. La madera utilizada como revestimiento al igual que la chapa es continua hasta en sus cierres laterales, generando una secuencia de recorrido visual. Esto genero un atravesar elementos que nos acompañan de manera perpendicular en el interior de la vivienda, hasta llegar a esta tapa faltante o vacio que nos permite ver el lago. Hacia el norte El norte jugamos con el basamento generando diferentes espacios y dándole movimiento y expusimos la liviandad del elemento superior “el mirador” ya sin esta piel.




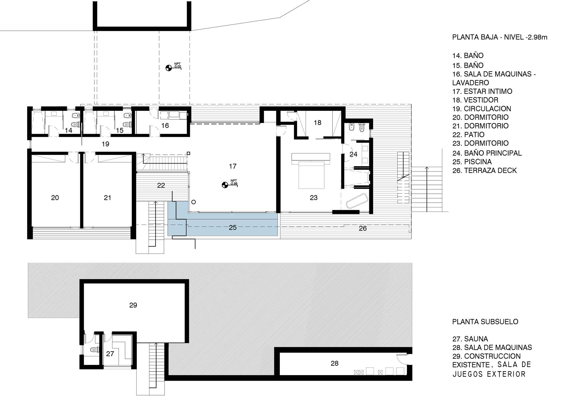
Hacia el nivel inferior en el soporte revestido en piedra, de fuerte carácter macizo y pétreo, que entabla una relación directa con el terreno montañoso, Los espacios para el descanso se disponen, continuando con el enfoque directo al lago en cada uno de ellos. Desde la planta alta se llega por una escalera que permite la observación del paisaje y conecta con otro espacio de óseo y reunión para amigos y familia de manera más intima, frente a un espejo de agua artificial cuya vista se expande hacia el lago y su majestuosa naturaleza.
Galería de fotos destacadas