


FICHA TÉCNICA
Estudio Servente & Larrazabal Arqs
Proyecto y direccion: Arq. Santiago Servente Arq. Victoria Larrazabal
Ubicacion: Lago Meliquina, San Martín de los Andes, Neuquén, Patagonia
Año de proyecto : 2019
Superficie de terreno : 3300 m²
Superficie: 400 m² cubiertos
Destino: Vivienda unifamiliar

Esta casa fue soñada por nuestros clientes como un refugio de encuentro para la familia en un tranquilo pueblo de la Patagonia. Villa Lago Meliquina está ubicado a 40 kilómetros de San Martín de los Andes y 22 kilómetros del Cerro Chapelco, un pequeño enclave de casas y pequeños hoteles con un desarrollo lento pero sostenido en el tiempo. El lote elegido por este matrimonio joven se encuentra en la loma de un pequeño cerro que observa la profundidad del Lago.
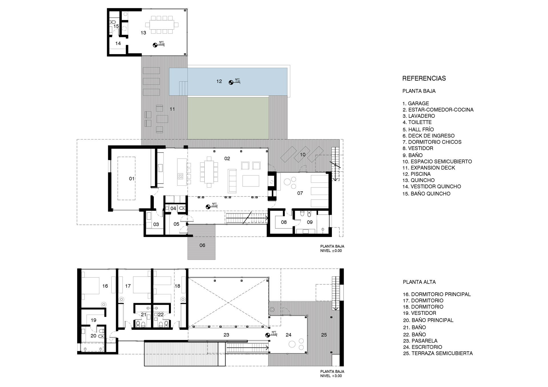
El programa de la casa incluyó espacios de uso común y social, con características diferenciadas para ser usados por padres, hijos y abuelos: estar, cocina y comedor integrados, escritorio, sala de juegos y quincho. Todos estos espacios invitan a tomarse un tiempo para compartir y cruzar miradas, de alguna manera se van relacionando con los recorridos que los enlazan y con las visuales que se cruzan entre ellos. Y por otro lado espacios privados, 4 dormitorios en suite y las áreas de servicio. Todos los espacios se unen por un recorrido que busca ir enlazando los espacios y descubriendo las vistas hacia el paisaje.
Los interiores y el recorrido moldean una forma exterior que se expresa a través de un techo ondulante y de un juego intenso de vacíos que potencian las formas. El gran techo que sube y baja se hace parte del paisaje de las montañas circundantes y del movimiento constante del agua del lago.
Los espacios de uso interior se complementan y continúan en expansiones exteriores, espacios que dan cobijo a la intemperie y protegen de los vientos y el sol, pero permiten sentirse inmersos en el paisaje.



La casa se construyó en mampostería revestida en piedra y en un sistema de vigas y columnas metálicas a la vista y Steel framing para el nivel superior revestido en madera de Coihue patagónico y chapa acanalada negra.
Galería de fotos destacadas







La casa debía contemplar el uso de energías alternativas, para lo que se instaló un sistema de energía de provisión de energía con paneles fotovoltaicos. Debido a las bajas temperaturas de la zona se hizo hincapié en la buena aislación térmica de la envolvente, se usaron tabiques de Retak, ladrillos de hormigón celular, aislación térmica de celulosa proyectada en tabiques livianos y techo, alcanzando excelentes espesores de aislación. Por otro lado, todas las aberturas de PVC cuentan con triple vidriado hermético.

