



FICHA TÉCNICA
Estudio Servente & Larrazabal Arqs
Proyecto y direccion: Arq. Santiago Servente Arq. Victoria Larrazabal
Ubicacion: Club de Campo Peñon del Lolog, San Martín de los Andes
Año de proyecto : 2009
Superficie de terreno : 2150 m²
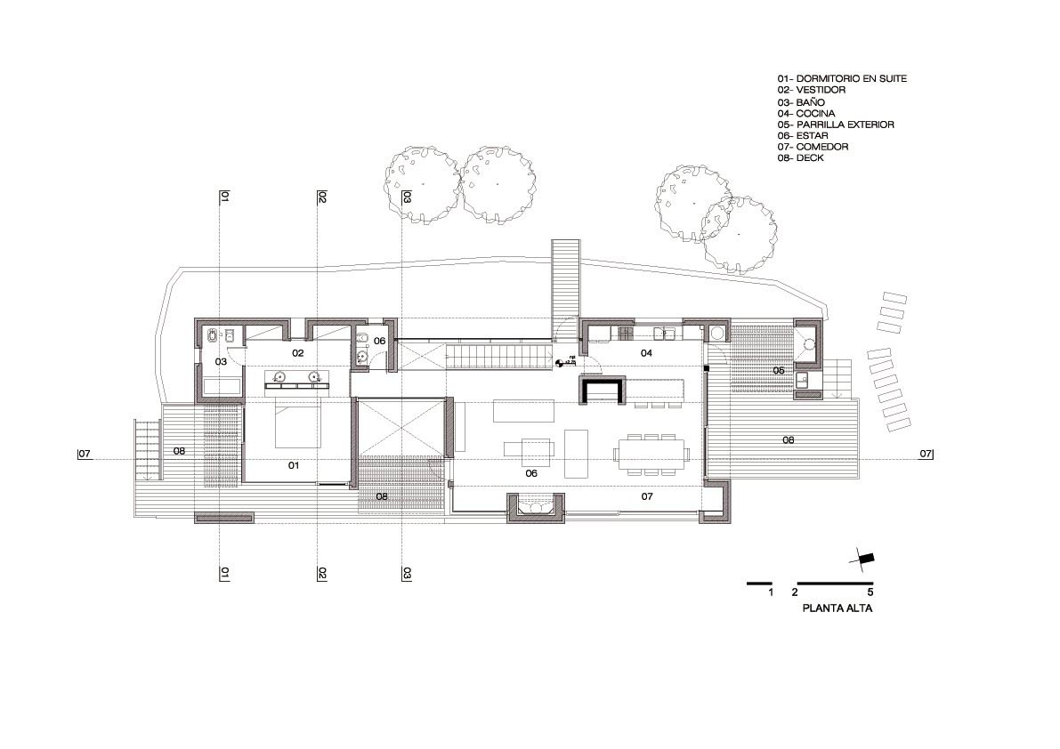
Superficie: 261 m² cubiertos
Destino: Vivienda unifamiliar

La casa se ubica en un lote con una interesante pendiente en el Club de campo peñón de Lolog, ubicado sobre la Ruta prov. 62 que se convierte en el camino que acerca a los turistas de San Martín de los Andes al Lago Lolog. Proyectamos la vivienda de vacaciones para un matrimonio de Buenos Aires y sus hijos buscando que pudiesen disfrutar de las mejores vistas hacia el entorno. Para ello invertimos el programa, así el estar comedor, la cocina y el dormitorio principal fueron ubicados en la planta alta desde donde logramos excelentes visuales.
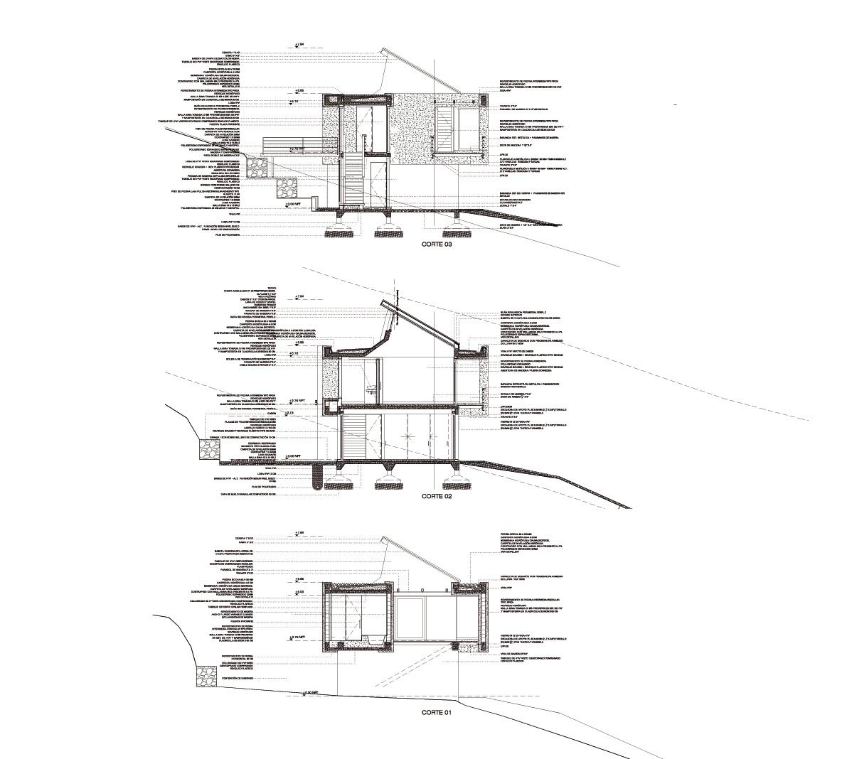
La búsqueda formal y expresiva se centró en un fuerte manejo de los volúmenes, los vacíos y el material. La planta alta se destaca como un volumen claro y contundente que flota y se apoya sobre el volumen inferior, construido en hormigón armado visto. El volumen superior se revistió en piedra y posee un gran juego expresivo gracias al juego de vacíos que se forma a través de los huecos que penetran incorporando el exterior, ya sea en las aberturas en los semicubiertos o los decks perimetrales que recorren la casa y el patio de acceso.
La piel de piedra que reviste este volumen juega un papel preponderante en la elaboración de esta pieza ya que se colocó de manera continua incluso en las esquinas donde la misma no pierde continuidad en sus aristas.
Los espacios principales, el estar-comedor y el dormitorio en suite de la planta alta, están cubiertos por un techo con pendiente que se transforma en un lucernario, con la idea de captar el sol de la tarde hasta el interior de la casa. De esta manera los espacios principales son iluminados a lo largo de todo el día por la luz natural del sol y logramos sutiles relaciones con el entorno incorporándolo y jugando con él.


La piedra, el hormigón visto, materiales de muy bajo mantenimiento, también se usaron en el interior para destacar algunos elementos, como la chimenea revestida en la misma piedra exterior, pero en forma de pirca, el techo inclinado de los lucernarios es una superficie continua de hormigón visto al igual, por ejemplo, que la barra que separa el comedor de la cocina.






Para esta vivienda se seleccionó madera del norte, Guayuvira con ventas de color fuertemente marcadas en los revestimientos interiores y petiribí para los muebles que también fueron diseñados por el estudio.
Galería de fotos destacadas
Para esta vivienda se seleccionó madera del norte, Guayuvira con ventas de color fuertemente marcadas en los revestimientos interiores y petiribí para los muebles que también fueron diseñados por el estudio.








