




FICHA TÉCNICA
Estudio Servente & Larrazabal Arqs
Proyecto y direccion: Arq. Santiago Servente Arq. Victoria Larrazabal
Año: 2023
Ubicación: Club De Campo Estancias Miralejos
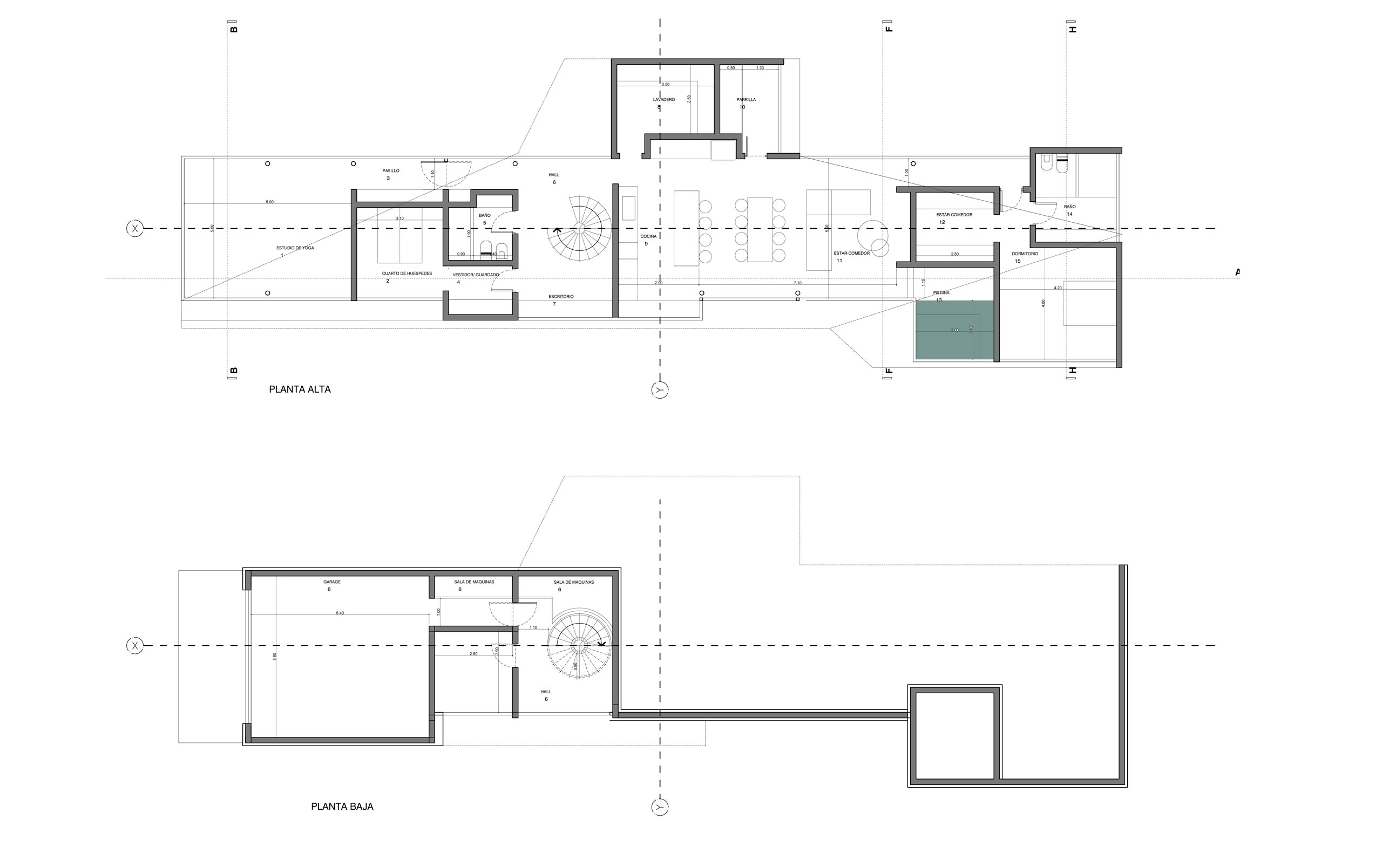
Superficie: 336m² cubiertos
Superficie de terreno: 4320 m²
Categoría: Vivienda unifamiliar
Colaboradores
Asesor y calculo estructuras: Ing. Hugo Peralta
Una pareja en busca de nuevo destino de vida en la Patagonia, eligió este increíble lote en el Club de Campo Estancias Miralejos, para posarse sobre el paisaje y disfrutarlo.
Hacia lo lejos el Lago Lolog aparece con gran intensidad, hacia el sur el Cordón Chapelco con sus altas montañas y hacia el norte el impactante Volcán Lanín.
La vivienda se desarrolla paralela a las cotas de niveles, con un nivel principal en la planta alta, que alberga las acciones cotidianas y sociales, apoyada sobre el área de servicios y de un pequeño estudio oficina.

La idea fue generar una gran plataforma que durante cada hora del día aprovechara las vistas del entorno y las integrara con la vida de los habitantes. Los espacios de uso se van sucediendo nos a otros para realizar diferentes actividades: espacio de yoga y meditación, dormitorio para invitados, hall de acceso con un estudio y área de trabajo, área de cocina y estar, relacionado con el área de lavadero y parrilla, espacio de mini pileta y dormitorio principal con su vestidor y baño independiente.
Es una casa para disfrutar en su interior, para vivir la calma y la desconexión de vivir en un lugar que invita al refugio y la contemplación.



