




FICHA TÉCNICA
Estudio Servente & Larrazabal Arqs
Proyecto y dirección: Arq. Santiago Servente Arq. Victoria Larrazabal
Ubicación: Lago Cholila, Loteo San Esteban, Provincia de Chubut
Año de proyecto: 2016
Superficie de terreno: 10.000 m²
Superficie: 200 m² cubiertos
Destino: Vivienda unifamiliar
En primer lugar aparece “el sitio”, un terreno inmerso en un paisaje único, imponente, abrumador por su belleza que hipnotiza la vista. Presentes en este paisaje aparecen el anhelo de la pareja que nos convoca a pensar su refugio. Un refugio para contemplar y compartir actividades que ambos disfrutan: la escritura, lectura y la fotografía. Un refugio que sirva como huella en este paraíso.
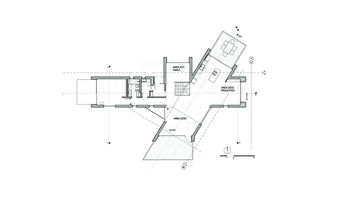
Pensamos la casa como un objeto – refugio para atrapar el paisaje, que funcione como los múltiples lentes de una cámara fotográfica. En un ambiente abarcador, se individualizan visuales – a modo de tomas fotográficas, y se definen usos y acciones particulares que conviven entre sí.
Las vistas interiores atraviesan los ambientes y se cruzan para enfocar más allá.

El área de estar, de charla, de reunión (ÁREA DE OCIO) se expande hacia el lugar de producción (ÁREA DE OCIO PRODUCTIVO), al comedor-cocina, al área de actividades físicas. Las acciones se separan pero se nutren unas de otras. De esta manera conseguimos que los pequeños que cada ambiente gane amplitud y aumente sus posibilidades de contacto con el entorno.
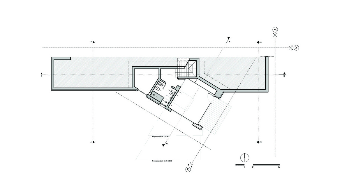
Las expansiones refuerzan la idea de continuidad interior-exterior. Un deck de madera flota sobre el paisaje a continuación del estar. El comedor-cocina disfruta de una pequeña terraza ubicada al noreste, reparada del viento y con excelente asoleamiento. Uno de los dormitorios se ubica en la planta superior, la principal, el segundo dormitorio aprovecha el desnivel del terreno, y se dispone en la planta inferior, en contacto directo con el sector bajo del lote. Ambos dormitorios son independientes del resto de las actividades pero buscan gozar también de las vistas del paisaje. Dispusimos un baño para cada planta en relación directa con los dormitorios pero con uso compartido para el resto de la casa.
Generamos el proyecto a través de tres prismas de diferentes alturas que se interceptan y comienzan o finalizan en grandes ventanales a modo de teleobjetivos.