




FICHA TÉCNICA
Estudio Servente & Larrazabal Arqs
Proyecto y direccion: Arq. Santiago Servente Arq. Victoria Larrazabal
Ubicacion: Barrio Las Moras – Altos del Sol –San Martín de los Andes
Año de proyecto : 2020
Superficie de terreno : 650 m²
Superficie: 250 m² cubiertos
Destino: Vivienda unifamiliar

Esta casa tiene una historia previa debido a que el proyecto comenzó con un cliente y amigo, que una vez concretada las ideas principales de la vivienda optó por adquirir otro terreno en las afueras de san Martin de los Andes. En una segunda etapa quien adquirió el lote nos pidió realizar algunas modificaciones de acuerdo a sus expectativas. Y finalmente el sitio y proyecto fue adquirido por quienes le dieron el cierre final concretaron la construcción de la obra.
Creemos que con cada paso esta vivienda gano contundencia y funcionalidad. La obra se implanta en un lote con características urbanas, rodeado de viviendas de 2 o 3 niveles, en terrenos de dimensiones acotadas pero muy aprovechables.







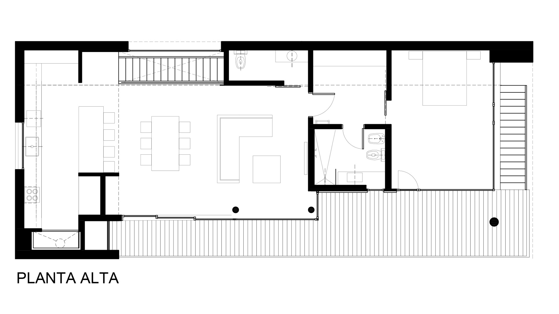
La vivienda aparece como un compacto y sólido volumen de piedra que se protege de las vistas de los vecinos próximos, y se abre a las vistas del cerro Chapelco a través de una expansión resguardada y protegida ubicada en la planta alta, nivel que alberga las áreas principales que serán usualmente aprovechadas por el matrimonio que habitará la casa.
El nivel inferior contiene el hall de acceso y la cochera cubierta, y da paso a dos dormitorios que eventualmente podrán ser tanto para los hijos que vendrán de visita como alquilados temporalmente para turismo.
En planta alta el dormitorio principal y el área de estar y comedor se destacan espacialmente con sus techos inclinados y cielorrasos de madera de cohiue patagónico. Los ventanales horizontales y continuos crean un interior que se extiende visualmente hacia el paisaje lejano y da amplitud a cada ambiente.
Los espacios más íntimos de los habitantes se encuentran en los extremos de la vivienda: el dormitorio principal hacia el lado sur y los dormitorios de los hijos se ubican en lado norte.