




FICHA TÉCNICA
Estudio Servente & Larrazabal Arqs
Proyecto y direccion: Arq. Santiago Servente Arq. Victoria Larrazabal
Ubicacion: El Pegual Club de Campo, San Martín de Los Andes
Año de proyecto : 2015-2016
Etapa : En obra
Superficie de terreno : 3023 m²
Superficie: 214,45 m² cubiertos
Destino: Vivienda unifamiliar

Este proyecto se ubica en un Club de campo ubicado en las afueras de San Martín de los Andes, cercano al Barrio Rucahue y enfrentando el cordón Chapelco.
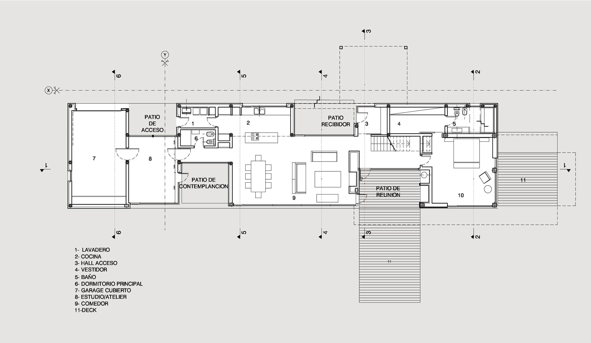
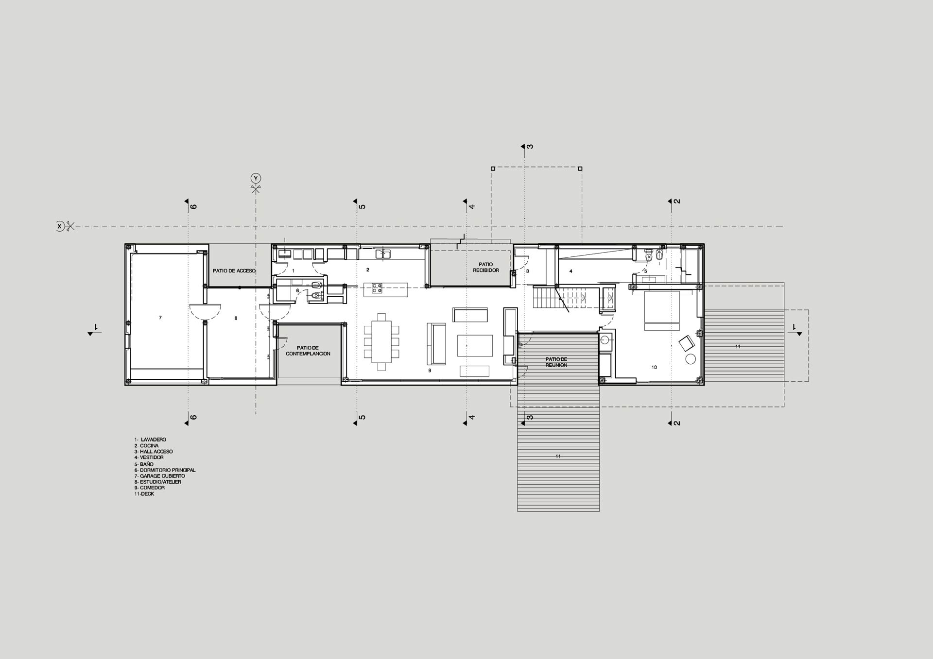
Se planteó una vivienda donde las acciones se relacionan a través de tres patios: un patio para recibir a quienes llegan, un patio de contemplación y un patio de reunión. El fuerte carácter longitudinal busca volcar las visuales hacia la imponente de vista de los cerros.
La piedra como envolvente continuo de la casa da un carácter monolítico a la construcción, donde los patios y las aberturas extensas y apaisadas proporcionan liviandad y aire tanto a los espacios interiores como a las fachadas.
La piedra será un travertino de coloración variable entre los ocres, los tonos violáceos y los tintes marrones. Se colocará con la junta tomada, como reminiscencia de la colocación antigua de los muros compuestos por grandes bloques de piedra, jugando con la dualidad del peso y lo etéreo.




El estar comedor se pensaron como un gran espacio, con un techo a un agua, con estructura continua sin apoyos intermedios. Dos ventanales cruzados, ubicados a diferente altura destacan el espacio y atrapan las visuales. Hacia el sur el ventanal se abre hacia el cerro Chapelco, hacia el norte, el ventanal elevado enmarca el bosque de las laderas cercanas.
El techo se construye con vigas compuestas de 40 cm de altura y vinculadas entre sí, salvando la distancia total.



















Galería de fotos destacadas