


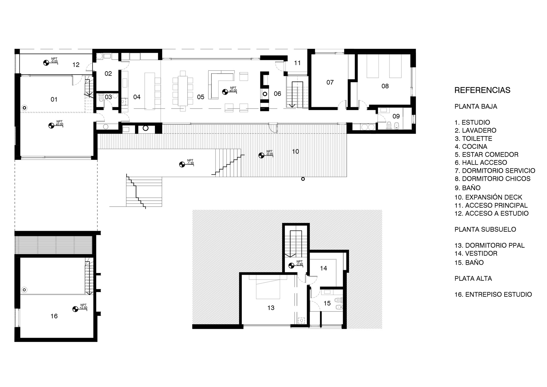
FICHA TÉCNICA
Proyecto y direccion: Arq. Santiago Servente Arq. Victoria Larrazabal
Ubicacion: La Reserva Baja, San Martín de los Andes, Neuquén, Patagonia
Año: 2016
Superficie de terreno : 3368 m²
Superficie: 405 m² cubiertos
Destino: Vivienda unifamiliar

Se trata de una vivienda permanente para un matrimonio de profesionales y sus hijos.
Diseñamos y dispusimos este programa mixto donde las funciones vivir y trabajar deberían disponerse de una manera efectiva y amigable.
Hacia un sector se volcó el estudio, la parte de servicio sirvió como fuelle, el sector público en el centro generando una transición hacia el área para dormir y descansar que se ubica del lado opuesto, la suite principal en el nivel inferior.
Nos enfrentamos a un terreno de una pendiente moderada para el cual tomamos la decisión de abrirnos hacia el este y hacia las mejores visuales del cordón Chapelco, dejando el ingreso del sol por la tarde.
El terreno posee una pendiente moderada pero marcada y constante, descendiendo de oeste a este, que permite abarcar las mejores vistas. La casa se dispuso en forma longitudinal de norte a sur. De manera paralela a las cotas. El dormitorio principal en el nivel inferior actúa como un apoyo contundente con el terreno, de esta manera la casa logra relacionarse con todos los niveles del terreno. Las terrazas de verde fueron transformando y creando distintas situaciones de usos para el parque.
Un espacio de ocio y contemplación ocupó el sector más bajo dispuesto junto a la pileta que sirve también para crear un borde para la nivelación de la última terraza verde.


La construcción se realizó con materiales tradicionales aprovechando la mano de obra local. Estructura de hormigón, mampostería y revestimiento de piedra tipo pirca gris en el exterior. Techo de estructura de madera, chapa acanalada gris que genera una continuidad de tonos y volumétrica con la envolvente de piedra. Interiormente las paredes fueron terminadas con yeso aplicado y se destaca como material visual la madera de Rauli en cielorrasos inclinados y en algunas paredes. Las aberturas se encargaron en madera aprovechando la posibilidad de colocar triple vidriado hermético asegurando una excelente aislación térmica en todos los ambientes con grandes paños vidriados.
El quincho continúa con el uso de los mismos materiales y con el planteo de volúmenes claros y con mono material, donde la madera aparece aportando calidez en detalles y tramas de parasoles y pérgolas.







Galería de fotos destacadas