




FICHA TÉCNICA
Estudio Servente & Larrazabal Arqs
Proyecto y direccion: Arq. Santiago Servente Arq. Victoria Larrazabal
Ubicacion: Club De Campo Peñon de Lolog
Año de proyecto : 2010
Superficie de terreno : 2500 m²
Superficie: 280 m² cubiertos – desc.y semicub.150 m2
Destino: Vivienda unifamiliar
Colaboradores:
Asesor y calculo estructuras: Ing. Hugo Peralta

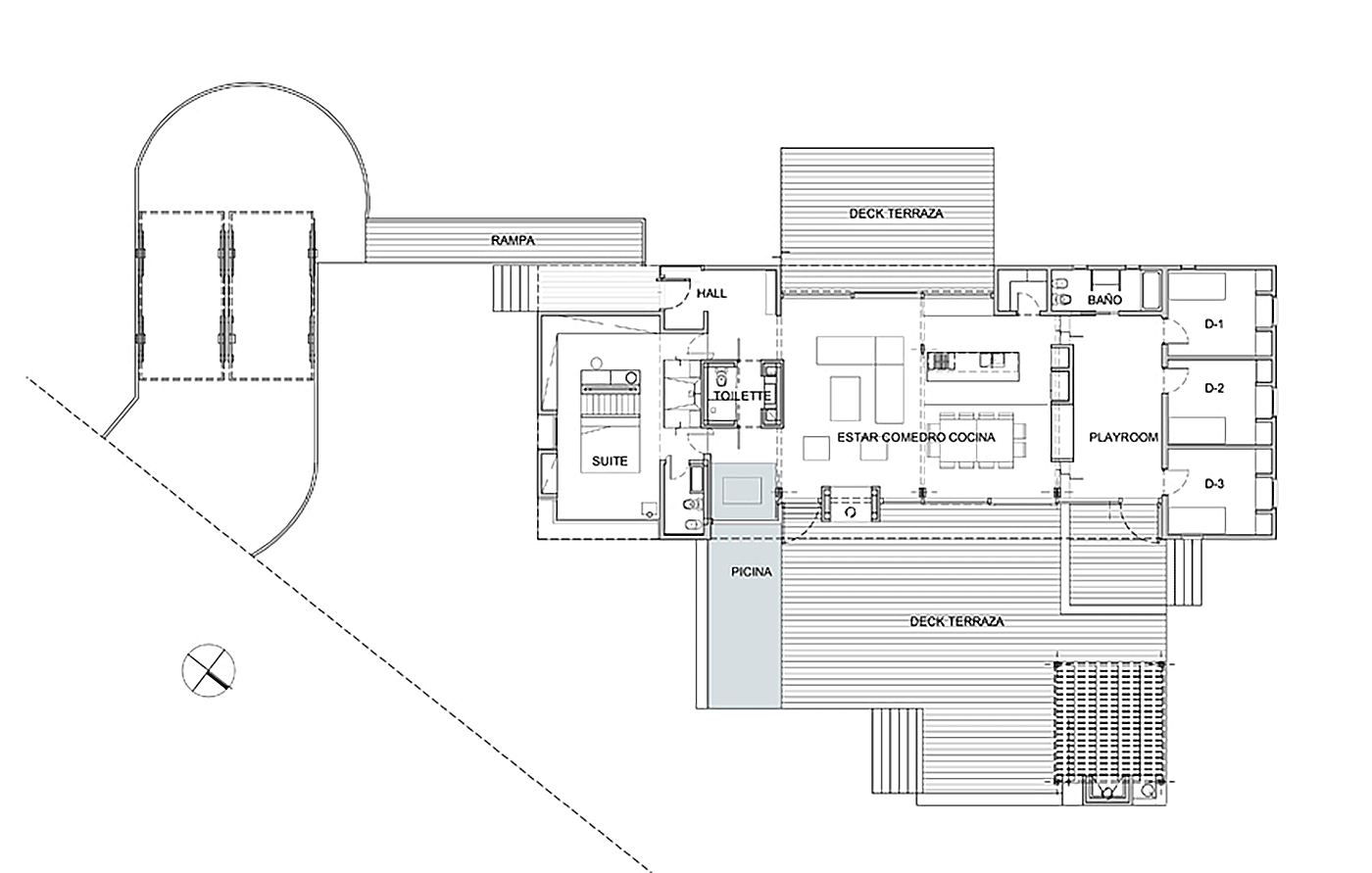
Diseñamos, proyectamos, dirigimos y construimos esta vivienda unifamiliar para un cliente muy particular dedicado a la venta de maderas, ubicada en el Club de Campo Peñón del Lolog, ruta prov. Nº62 camino al lago Lolog, a unos 8km del centro de San Martín de los Andes.
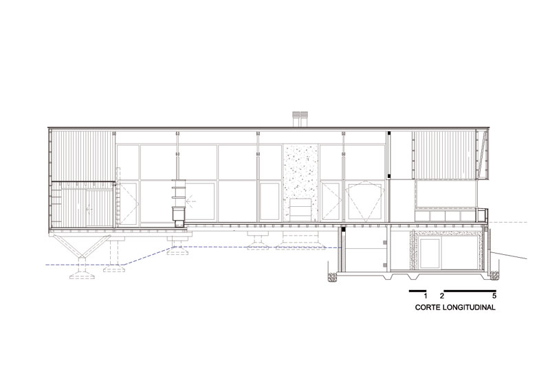
El terreno posee una leve pendiente y poca arboleda, y se encuentra rodeado de impactantes visuales. Buscando generar un mínimo impacto en el terreno la casa se construyó elevada sobre bases de hormigón armado que se van adaptando a los desniveles de la topografía, sobre los que se apoya la platea de madera que sostiene el nivel principal de la vivienda.
La casa es un volumen preciso que apoya sutilmente sobre la topografía del lote. La envolvente continua está resuelta en madera en las paredes e incluso en el techo, potenciando la forma sólida y fuerte. La vivienda abandona cualquier relación con el concepto de cabaña tradicional de madera, para transformarse en un objeto posado sobre el paisaje que busca ser descubierto.
Las aberturas dan vida al volumen cerrado generando vacíos. Hacia el noreste un ventanal de gran altura retranqueado, rompe con el volumen de la casa y hacia el sudoeste se opone un ventanal de menor altura con el mismo concepto. De esta manera dos grandes vacíos rompen el volumen y producen transparencia en el espacio, atrapando el exterior en el interior de la vivienda.



Otro juego de vacíos rompe las esquinas, el semicubierto que se genera en la entrada de la casa y las grandes ventanas embutidas en un muro del dormitorio principal.
En el interior desarrollamos un espacio integrado y dinámico bajo la estructura de la cubierta de madera. Los usos se entrecruzan para generar un interesante dinamismo interior: el hall, la sala de estar, el jacuzzi interior, el comedor, la cocina, la sala de juegos y el ático-escritorio se distribuyen en un espacio continuo separados solo por equipamiento funcional y el toilette que articula el interior.
No hay muros que se interpongan, las cerchas que sostienen la cubierta apoyan sobre columnas exentas de madera ensambladas, permitiendo la fluidez espacial. Acompañamos y pusimos en evidencia esta continuidad espacial también hacia el exterior, los ventanales enfrentados permiten que el paisaje atraviese y diluya el espacio interior, que se expande hacia los decks exteriores de madera.
En el deck principal orientado al noreste esta la piscina climatizada y un espacio con parrilla.
El deck ubicado hacia el sudoeste surge como un lugar más contenido para disfrutar del atardecer.
Los espacios más íntimos de los habitantes se encuentran en los extremos de la vivienda: el dormitorio principal hacia el lado sur y los dormitorios de los hijos se ubican en lado norte.




En el dormitorio principal diluimos y disgregamos algunas acciones: aseo, higiene, vestir, dormir, relax, mirar, mirarse, etc, lo que nos dio como resultado un lugar fluido acorde a las necesidades del comitente.
Los muros que cierran la casa son íntegramente de madera, tanto en el revestimiento exterior (madera de timbo) e interior (cedro moro) y la estructura, con las debidas aislaciones, hacen en si en una construcción de excelente calidad y durabilidad.
Algunos volúmenes interiores fueron resueltos con una piel de piedra blanca colocada en forma de pirca que se destacan frente a los tonos de la madera. Esto sucede en el volumen de la salamandra y el toilette y el tabique bajo que sostiene la escalera del dormitorio.
La cocina es una isla, una gran mesada de trabajo y para disfrutar de la preparación de una comida. Es un volumen revestido en mármol carrara, que combina con el revestimiento de piedra blanca, que a su vez cuenta con el apoyo del mueble que divide el comedor del estar de los niños.
El material usado y concepto constructivo de esta casa generan una optimización económica debido a la rapidez que puede alcanzar la ejecución de la obra, la limpieza, orden que el sistema constructivo permite y el cálculo de materiales muy preciso que se consigue.